Z 144

2 592 000 
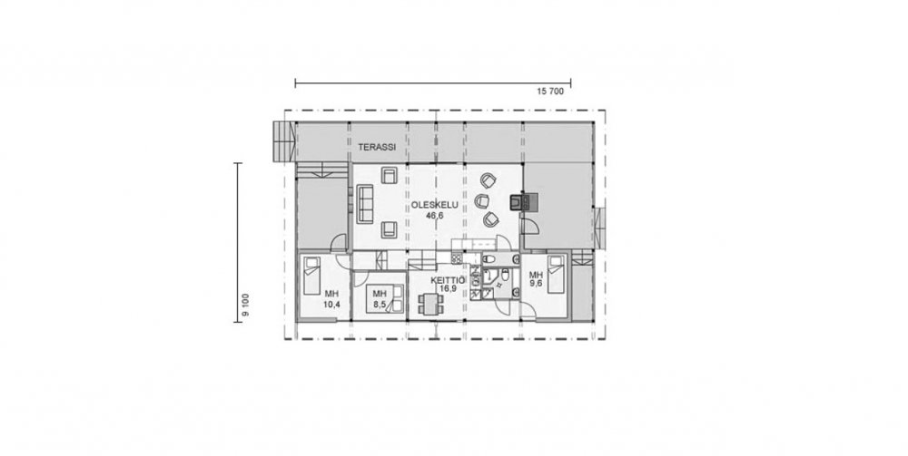
Площадь: 144 м2
Ширина: 16 м
Длина: 9 м
Количество этажей:

Наша строительная компания предлагает Вам построить каркасный дом 144 м2 с террасами.

Вы можете приобрести дом на этапе под «черновую отделку»:

  • Дом на монолитном фундаменте из сухой доски, с утеплением стен 200 мм и перекрытий 250 мм.
  • Кровля – металлочерепица.
  • Окна – ПВХ, двухкамерный стеклопакет.
  • Двери – металлические, утепленные.
  • Наружная отделка – "имитация бруса" без покраски.

Возможно выполнение работ под «чистовую отделку»:

  • Дом на монолитном фундаменте с водяными полами (шведская плита) из сухой доски с утеплением стен 200 мм и перекрытий 250 мм.
  • Кровля – металлочерепица, водосточная система, снегозадержатели.
  • Окна – ПВХ, двухкамерный стеклопакет, подоконники, откосы.
  • Двери – металлические, утепленные.
  • Наружная отделка – "имитация бруса" с покраской.
  • Внутренняя отделка стен – ГКЛ по металлическому каркасу.
  • Электропроводка, водопровод, вентиляция, канализация.

Рассрочка платежа, ипотека, материнский капитал.

Вы можете приобрести дом с отделкой «под ключ»:

  • укладка напольного покрытия;
  • оклейка или окраска стен;
  • установка котла, бойлера;
  • септик,  ввод воды в дом;
  • сантехническое оборудование;
  • межкомнатные двери.

Бесплатно составим смету по вашему техническому заданию.