4M418
| Площадь: | 225.24 м2 |
| Ширина: | 9.48 м |
| Длина: | 11.88 м |
| Количество этажей: | 2 |
| Количество этажей: | 2 |
| Общая площадь: | 225.24 м2 |
| Высота дома: | 7.20 м |
| Размеры дома: | 11.88 м х 9.48 м |
Именно о таком доме говорят «больше внутри, чем снаружи».
Дом мансардного типа под черепичной крышей с гаражом и крытым крыльцом очень похож на американские дома среднего достатка. Вроде ничего выдающегося. Но войдя внутрь, вы попадаете во вселенную порядка - настолько сбалансировано размещены все помещения.
На первом этаже, помимо гостиной-столовой, совмещенной с кухней открытого типа, и «удобств», в наличии имеется кабинет. Множество окон, в том числе французские в гостиной, позволяют дневному свету беспрепятственно проникать в помещение, создавая ощущение простора.
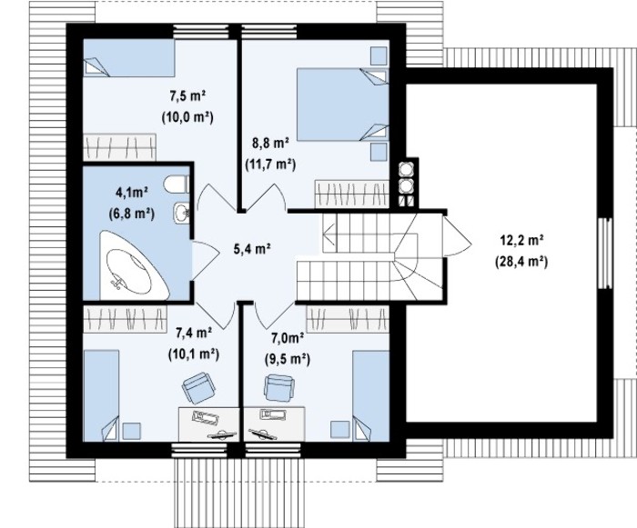
На втором этаже искусно размещены четыре спальни и ванная, совершенно не стесняя друг друга в размерах.
Есть возможность сделать веранду позади дома с выходом через французские окна, и тогда ваша гостиная приобретет дополнительную летнюю зону.