185030, Петрозаводск, ул.Володарского 40 (1 подъезд, 3 этаж)
+7 (123) 456-78-90
+7 (123) 456-78-90
Заказать звонок
185030, Петрозаводск, ул.Володарского 40 (1 подъезд, 3 этаж)
+7 (123) 456-78-90
+7 (123) 456-78-90
О компании
Проекты
Услуги
Наши работы
Контакты
Главная
>
Проекты
>
Дома из пеноблоков
>
4M198
4M198
1 839 122
₽
Заказать
Площадь:
136.23 м
2
Ширина:
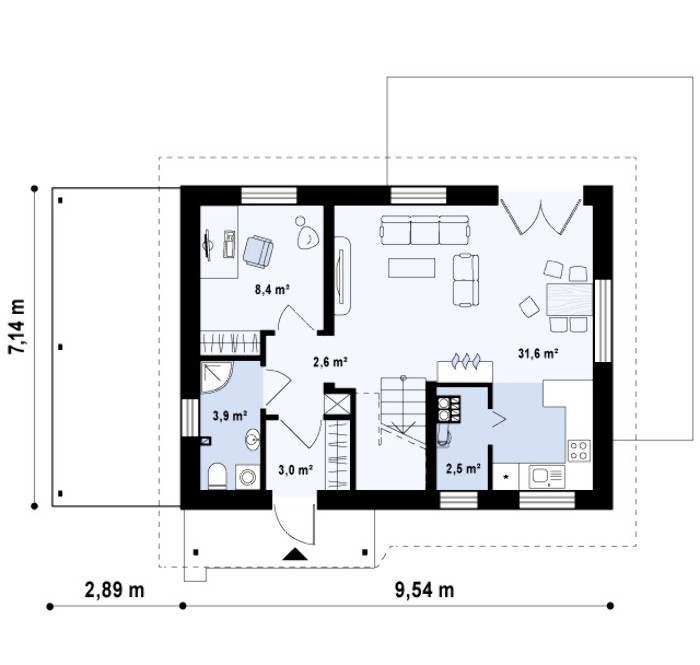
7.14 м
Длина:
9.54 м
Количество этажей:
2
Количество этажей:
2
Общая площадь:
136.23 м
2
Высота дома:
7.34 м
Размеры дома:
7.14 м х 9.54 м
2018 © Строительная компания «Строительство домов»
Сайт создан в
Студии Медиавеб