185030, Петрозаводск, ул.Володарского 40 (1 подъезд, 3 этаж)
+7 (123) 456-78-90
+7 (123) 456-78-90
Заказать звонок
185030, Петрозаводск, ул.Володарского 40 (1 подъезд, 3 этаж)
+7 (123) 456-78-90
+7 (123) 456-78-90
О компании
Проекты
Услуги
Наши работы
Контакты
Главная
>
Проекты
>
Дома из газобетона
>
4M488
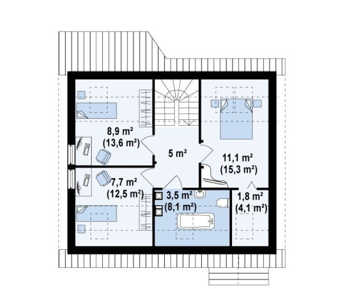
4M488
2 119 349
₽
Заказать
Площадь:
156.98 м
2
Ширина:
8.28 м
Длина:
9.48 м
Количество этажей:
2
Количество этажей:
2
Общая площадь:
156.98 м
2
Высота дома:
7.05 м
Размеры дома:
9.48 м х 8.28 м
2018 © Строительная компания «Строительство домов»
Сайт создан в
Студии Медиавеб