185030, Петрозаводск, ул.Володарского 40 (1 подъезд, 3 этаж)
+7 (123) 456-78-90
+7 (123) 456-78-90
Заказать звонок
185030, Петрозаводск, ул.Володарского 40 (1 подъезд, 3 этаж)
+7 (123) 456-78-90
+7 (123) 456-78-90
О компании
Проекты
Услуги
Наши работы
Контакты
Главная
>
Проекты
>
Дома из газобетона
>
4M078
4M078
1 649 420
₽
Заказать
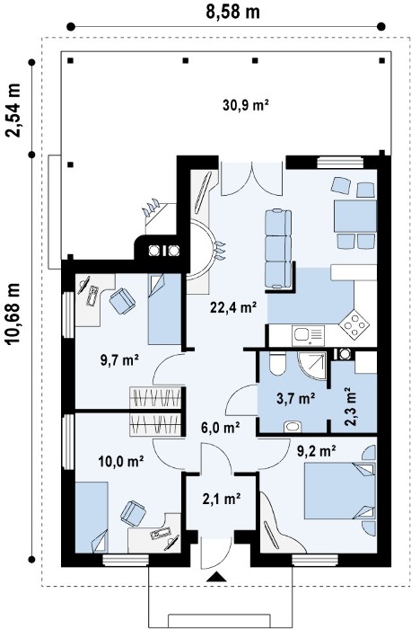
Площадь:
91.63 м
2
Ширина:
8.58 м
Длина:
10.68 м
Количество этажей:
1
Количество этажей:
1
Общая площадь:
91.63 м2
Высота дома:
5.43 м
Размеры дома:
10.68 м х 8.58 м
Крытая терасса:
2.54 м х 8.58 м
2018 © Строительная компания «Строительство домов»
Сайт создан в
Студии Медиавеб