4M061
| Площадь: | 181.3 м2 |
| Ширина: | 8.94 м |
| Длина: | 10.14 м |
| Количество этажей: | 2 |
| Количество этажей: | 2 |
| Общая площадь: | 181.30 м2 |
| Высота дома: | 7.54 м |
| Размеры дома: | 10.14 м х 8.94 м |
Компактный классический дом представляет собой удачный вариант загородного жилья. Такой проект понравится людям, ценящим домашнее тепло и уют.
Привлекательный внешний вид дома создают изящная форма строения, большие мансардные окна, входная группа с колоннами и деревянные конструкции, использованные при отделке фасада. А нестандартная внутренняя планировка подчеркивает изящество и неповторимость дома.
Благодаря сложной форме дневной зоны, выделены отдельные пространства. При этом целостность всего этажа сохраняется. Границей между ними служит лестница, ведущая в мансарду. Гостиная и столовая с отдельными выходами на просторную террасу, закрытая кухня создают единое светлое пространство. А угловая терраса зрительно расширяет дневную зону.
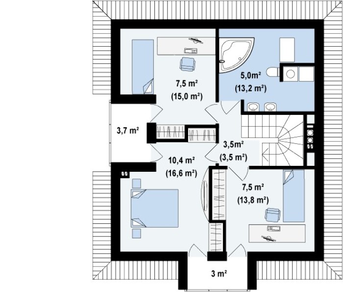
Мансарда отдана под уютную ночную зону. Ее основу составляют три спальные комнаты, в которых предусмотрены отдельные выходы на балконы. Комфортное пространство дополняет ванная комната общего пользования. Кстати, ее размеры позволяют здесь дополнительно оборудовать прачечную.