4M035
| Площадь: | 242.61 м2 |
| Ширина: | 8.64 м |
| Длина: | 14.04 м |
| Количество этажей: | 2 |
| Количество этажей: | 2 |
| Общая площадь: | 242.61 м2 |
| Высота дома: | 7.42 м |
| Размеры дома: | 14.04 м х 8.64 м |
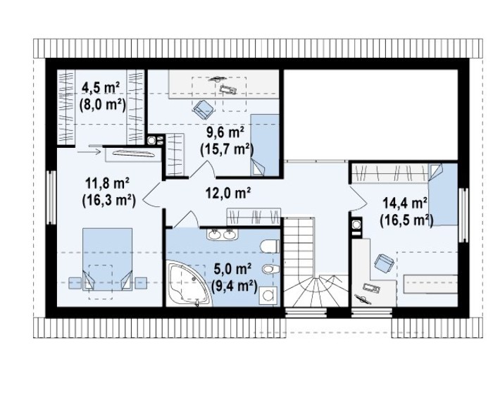
В функциональном и комфортном проекте собраны интересные архитектурные решения. Такой дом понравится современной семье. Его главное достоинство – второй свет в гостиной. За счет присоединения пространства второго этажа здесь спроектированы высокие окна. Большая площадь остекления гарантирует освещение на протяжении всего светового дня и дарят ощущение полного единения с природой.
Терраса и открытая кухня, примыкающие к гостиной, визуально увеличивает пространство, и позволяют рационально организовать ежедневный быт. Кроме того, на этом же этаже находятся небольшая спальня, рядом с ней санузел. А на западной стороне дома расположен встроенный гараж для одной машины.
Площадь на втором этаже, которую архитекторы использовали для расширения пространства гостиной, не ограничивает возможностей рационального использования жилой мансарды. За счет удачной планировки, на втором этаже расположились три уютные спальни, большая ванная комната и просторный гардероб для всей семьи.