185030, Петрозаводск, ул.Володарского 40 (1 подъезд, 3 этаж)
+7 (123) 456-78-90
+7 (123) 456-78-90
Заказать звонок
185030, Петрозаводск, ул.Володарского 40 (1 подъезд, 3 этаж)
+7 (123) 456-78-90
+7 (123) 456-78-90
О компании
Проекты
Услуги
Наши работы
Контакты
Главная
>
Проекты
>
Дома из газобетона
>
4M033
4M033
3 757 493
₽
Заказать
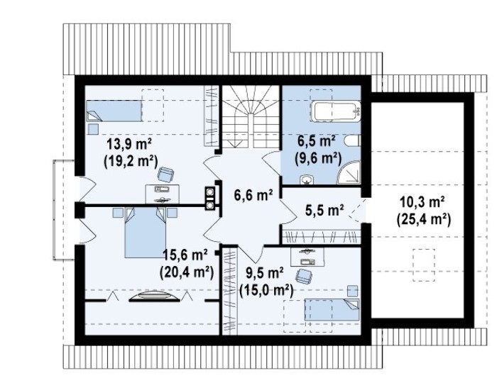
Площадь:
278.33 м
2
Ширина:
9.48 м
Длина:
14.68 м
Количество этажей:
2
Количество этажей:
2
Общая площадь:
278.33 м
2
Высота дома:
7.00 м
Размеры дома:
14.68 м х 9.48 м
2018 © Строительная компания «Строительство домов»
Сайт создан в
Студии Медиавеб