185030, Петрозаводск, ул.Володарского 40 (1 подъезд, 3 этаж)
+7 (123) 456-78-90
+7 (123) 456-78-90
Заказать звонок
185030, Петрозаводск, ул.Володарского 40 (1 подъезд, 3 этаж)
+7 (123) 456-78-90
+7 (123) 456-78-90
О компании
Проекты
Услуги
Наши работы
Контакты
Главная
>
Проекты
>
Дома из бруса
>
Дом №7
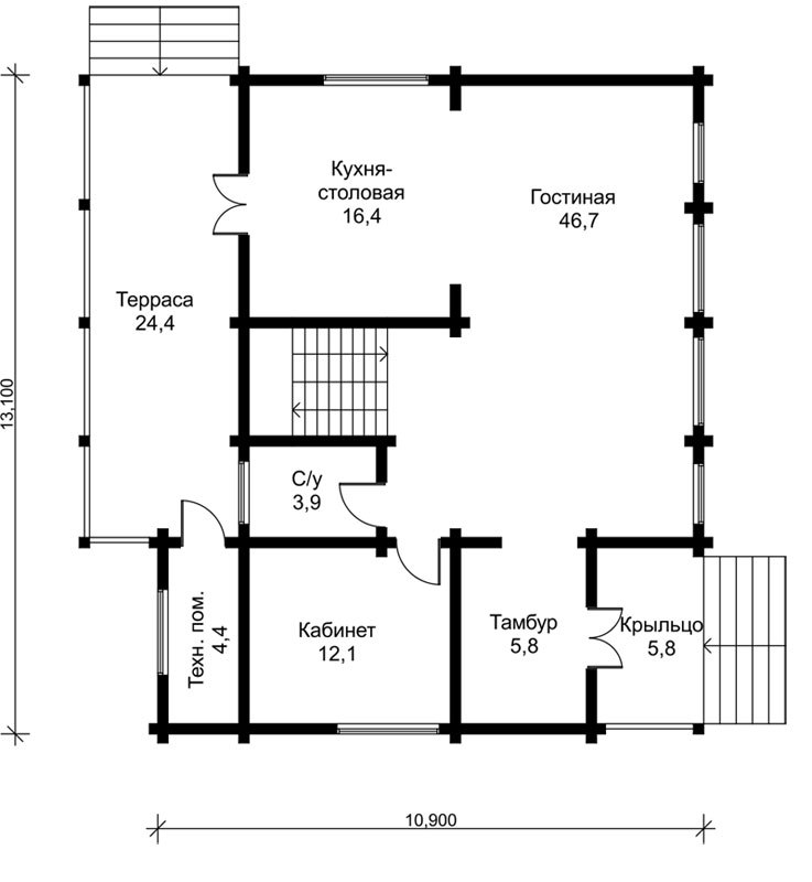
Дом №7
3 855 330
₽
Заказать
Площадь:
285.58 м
2
Ширина:
10.9 м
Длина:
13.1 м
Количество этажей:
2
Общая площадь:
285.58 м
2
Размеры дома:
13.1 м х 10.9 м
2018 © Строительная компания «Строительство домов»
Сайт создан в
Студии Медиавеб