185030, Петрозаводск, ул.Володарского 40 (1 подъезд, 3 этаж)
+7 (123) 456-78-90
+7 (123) 456-78-90
Заказать звонок
185030, Петрозаводск, ул.Володарского 40 (1 подъезд, 3 этаж)
+7 (123) 456-78-90
+7 (123) 456-78-90
О компании
Проекты
Услуги
Наши работы
Контакты
Главная
>
Проекты
>
Дома из бруса
>
Дом №47
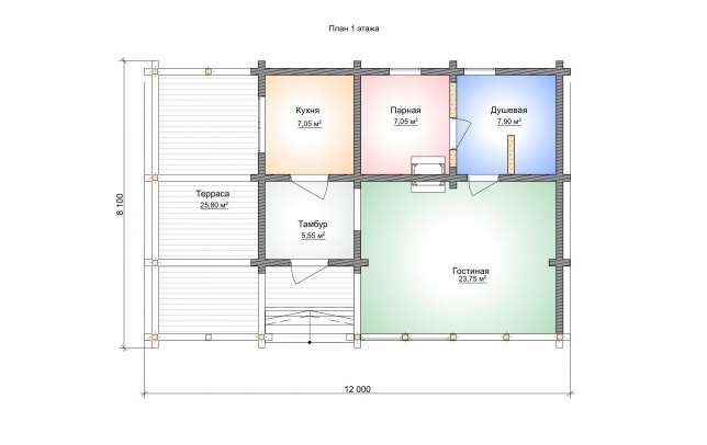
Дом №47
923 400
₽
Заказать
Площадь:
51.3 м
2
Ширина:
8.1 м
Длина:
12 м
Количество этажей:
1
Общая площадь:
51.3 м
2
Размеры дома:
12 м х 8.1 м
2018 © Строительная компания «Строительство домов»
Сайт создан в
Студии Медиавеб