185030, Петрозаводск, ул.Володарского 40 (1 подъезд, 3 этаж)
+7 (123) 456-78-90
+7 (123) 456-78-90
Заказать звонок
185030, Петрозаводск, ул.Володарского 40 (1 подъезд, 3 этаж)
+7 (123) 456-78-90
+7 (123) 456-78-90
О компании
Проекты
Услуги
Наши работы
Контакты
Главная
>
Проекты
>
Дома из бруса
>
Дом №45
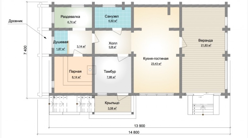
Дом №45
1 450 260
₽
Заказать
Площадь:
80.57 м
2
Ширина:
7.4 м
Длина:
13.9 м
Количество этажей:
1
Общая площадь:
80.57 м
2
Размеры дома:
13.9 м х 7.4 м
2018 © Строительная компания «Строительство домов»
Сайт создан в
Студии Медиавеб