185030, Петрозаводск, ул.Володарского 40 (1 подъезд, 3 этаж)
+7 (123) 456-78-90
+7 (123) 456-78-90
Заказать звонок
185030, Петрозаводск, ул.Володарского 40 (1 подъезд, 3 этаж)
+7 (123) 456-78-90
+7 (123) 456-78-90
О компании
Проекты
Услуги
Наши работы
Контакты
Главная
>
Проекты
>
Дома из бруса
>
Дом №39
Дом №39
1 833 300
₽
Заказать
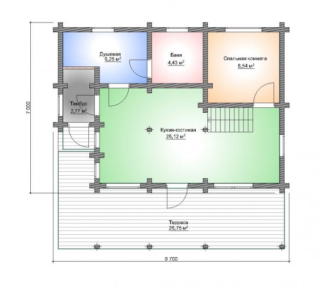
Площадь:
97.13 м
2
Ширина:
7 м
Длина:
9.7 м
Количество этажей:
2
Общая площадь:
97.13 м
2
Размеры дома:
9.7 м х 7 м
2018 © Строительная компания «Строительство домов»
Сайт создан в
Студии Медиавеб