185030, Петрозаводск, ул.Володарского 40 (1 подъезд, 3 этаж)
+7 (123) 456-78-90
+7 (123) 456-78-90
Заказать звонок
185030, Петрозаводск, ул.Володарского 40 (1 подъезд, 3 этаж)
+7 (123) 456-78-90
+7 (123) 456-78-90
О компании
Проекты
Услуги
Наши работы
Контакты
Главная
>
Проекты
>
Дома из бревна
>
Проект ОБ-244
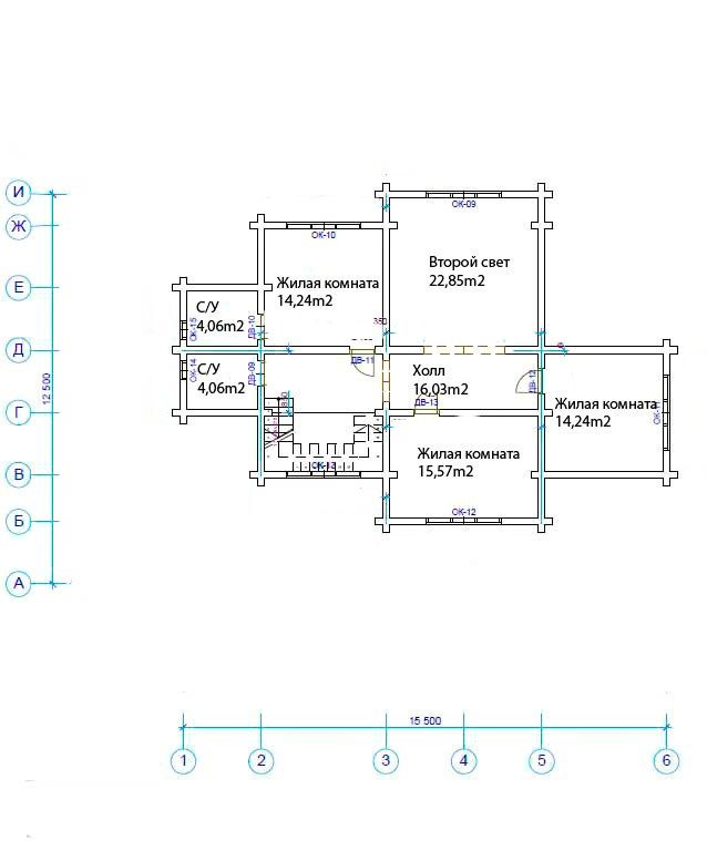
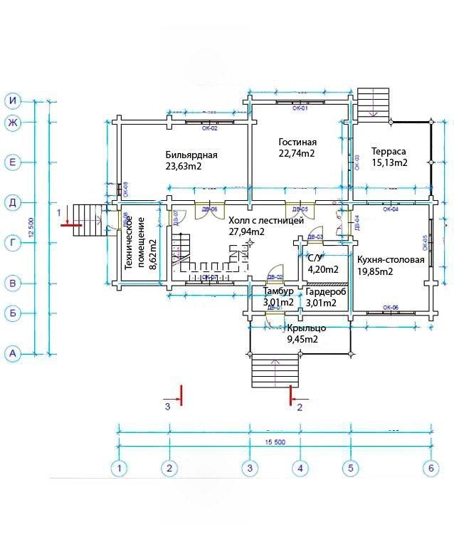
Проект ОБ-244
3 462 360
₽
Заказать
Площадь:
244 м
2
Ширина:
9 м
Длина:
11 м
Количество этажей:
2
Количество этажей:
2
Общая площадь:
244 м
2
Размеры дома:
9 м х 11 м
2018 © Строительная компания «Строительство домов»
Сайт создан в
Студии Медиавеб