185030, Петрозаводск, ул.Володарского 40 (1 подъезд, 3 этаж)
+7 (123) 456-78-90
+7 (123) 456-78-90
Заказать звонок
185030, Петрозаводск, ул.Володарского 40 (1 подъезд, 3 этаж)
+7 (123) 456-78-90
+7 (123) 456-78-90
О компании
Проекты
Услуги
Наши работы
Контакты
Главная
>
Проекты
>
Дома из бревна
>
Проект ОБ-131
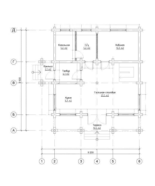
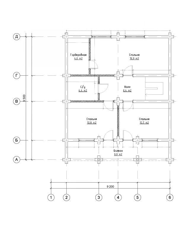
Проект ОБ-131
1 859 000
₽
Заказать
Площадь:
131 м
2
Ширина:
9.2 м
Длина:
9.5 м
Количество этажей:
2
Размеры дома:
9,5 м х 9,2 м
Площадь:
131 м²
Количество этажей:
2
2018 © Строительная компания «Строительство домов»
Сайт создан в
Студии Медиавеб