Проект «Донской»
180 000 ₽
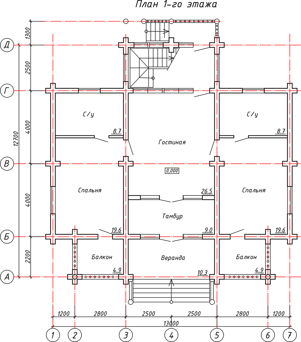
| Площадь: | 180 м2 |
| Ширина: | 13 м |
| Длина: | 14 м |
| Количество этажей: | 2 |
| Технология строительства: | Из оцилиндрованного бревна |
| Размеры дома: | 14 м х 13 м |
| Площадь: | 180 м² |
| Этажей: | 2 |
Большой, просторный дом выполнен из оцилиндрованного бревна.
Подходит для большой семьи. Идеально подойдет для круглогодичного проживания.