185030, Петрозаводск, ул.Володарского 40 (1 подъезд, 3 этаж)
+7 (123) 456-78-90
+7 (123) 456-78-90
Заказать звонок
185030, Петрозаводск, ул.Володарского 40 (1 подъезд, 3 этаж)
+7 (123) 456-78-90
+7 (123) 456-78-90
О компании
Проекты
Услуги
Наши работы
Контакты
Главная
>
Проекты
>
Бани
>
Проект ББ-24
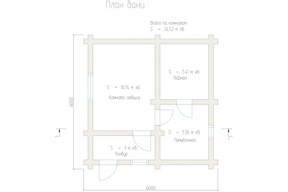
Проект ББ-24
535 500
₽
Заказать
Площадь:
24 м
2
Ширина:
5.4 м
Длина:
5.4 м
Количество этажей:
1
Технология строительства:
Из бревна
Размеры бани:
5,4 м х 5,4 м
Площадь:
24 м²
Количество этажей:
1
2018 © Строительная компания «Строительство домов»
Сайт создан в
Студии Медиавеб